Gemütliche Doppelhaushäfte mit Garten – Ideale Basis für Ihre Wohnideen
42349, Wuppertal, Deutschland
Diese charmante Doppelhaushälfte aus dem Jahr 1979 befindet sich in verkehrsgünstiger Wohnlage von Wuppertal-Cronenberg und bietet ideale Voraussetzungen für Paare oder kleine Familien, die sich den Traum vom eigenen Zuhause erfüllen möchten.
Auf einem Grundstücksanteil von ca. 367 m² bietet die Immobilie eine solide Basis für Eigennutzer mit Gestaltungswunsch oder handwerklichem Geschick.
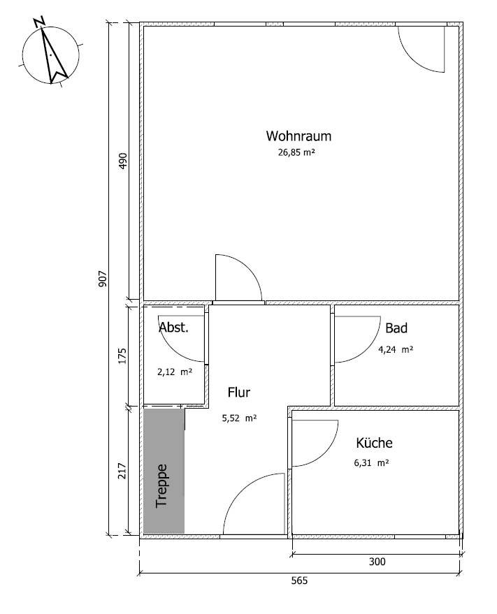
Die Wohnfläche im Haus beträgt ca. 76 m². Hinzu kommt eine großzügige Terrasse mit ca. 20 m², die gemäß üblicher Berechnung anteilig mit 25 % berücksichtigt wurde. Daraus ergibt sich eine anrechenbare Gesamtwohnfläche von ca. 81 m².
Das Haus überzeugt durch eine funktionale Raumaufteilung sowie einen schönen Gartenbereich mit neu angelegter Terrasse und Gehwegen – ideal für Käufer mit dem Wunsch nach einem eigenen grünen Rückzugsort.
Die Immobilie ist Teil einer kleinen Eigentümergemeinschaft mit insgesamt vier Häusern auf einem Gesamtgrundstück von ca. 1.205 m². Neben dieser Doppelhaushälfte befinden sich auf dem Grundstück noch die zweite Haushälfte sowie zwei freistehende Einfamilienhäuser.
Trotz der Teilung nach Wohnungseigentumsgesetz bietet das Haus den Charakter eines eigenständigen Hauses: Jede Einheit verfügt über einen eigenen Zugang sowie individuell erfasste Versorgungsleistungen. Ein klassisches Hausgeld fällt nicht an.
Der Gartenbereich mit Terrasse bietet viel Potenzial zur individuellen Gestaltung und schafft eine angenehme Wohnatmosphäre im Grünen.
Abgerundet wird das Angebot durch einen zum Haus gehörenden Stellplatz.
Die Immobilie eignet sich besonders für Käufer, die ein Haus mit Garten suchen und bereit sind, durch Renovierungs- und Modernisierungsmaßnahmen ihr persönliches Zuhause zu gestalten.
| Objekt ID: | 260201 |
| Verfügbar ab: | sofort |
| Kaufpreis: | 219.000 EUR |
| Provision für Käufer: | 2% |
| Provision für Verkäufer: | 2% |
| Energietyp: | Gas-Brennwertheizung |
| Dachform: | Satteldach |
| Befeuerung: | Erdgas |
| Zimmer: | 3 |
| Schlafzimmer: | 2 |
| Badezimmer: | 1 |
| Wohnfläche: | 81m² |
| Grundstücksfläche: | 367m² |
| Etagen: | 2 |
| Baujahr: | 1979 |
| Objektzustand: | modernisierungsbedürftig |
| Heizungsart: | Gas-Brennwertheizung |
| Befeuerungsart: | Erdgas |
| Baujahr lt. Energieausweis: | 2022 |
| Energieeffizienzklasse: | D |
| Wert des Endenergiebedarfs: | 101,82 kWh/m²*a |
| Art des Energieausweises: | Verbrauchsausweistyp |
| Gültigkeit des Energieausweises: | 16.02.2036 |
Mikrolage:
Die Immobilie befindet sich in verkehrsgünstiger Lage im beliebten Wuppertaler Stadtteil Cronenberg, der für seine gewachsene Wohnstruktur, den hohen Grünanteil und die familienfreundliche Atmosphäre bekannt ist.
Das direkte Wohnumfeld ist geprägt von einer ruhigen, gewachsenen Nachbarschaft mit überwiegend Einfamilien- und Doppelhausbebauung. Gleichzeitig profitieren Bewohner von einer guten Erreichbarkeit wichtiger Einrichtungen des täglichen Bedarfs.
Das Zentrum von Cronenberg mit Einkaufsmöglichkeiten, Ärzten, Apotheken, Cafés, Restaurants sowie weiteren Dienstleistern ist in nur etwa 4 Minuten mit dem Auto erreichbar. Auch Schulen, Kindergärten und Sporteinrichtungen befinden sich im näheren Umfeld.
Ein zusätzlicher Standortvorteil ist die Nähe zur benachbarten Stadt Solingen. Die Solinger Innenstadt mit einem erweiterten Angebot an Einkaufsmöglichkeiten, Gastronomie, kulturellen Einrichtungen und Arbeitsplätzen ist in etwa 10 Minuten mit dem Auto erreichbar.
Die Umgebung zeichnet sich zudem durch die typisch bergische Landschaft mit zahlreichen Wald- und Grünflächen aus. Diese bieten einen hohen Freizeit- und Erholungswert und laden zu Spaziergängen, sportlichen Aktivitäten oder Fahrradtouren ein.
Ein besonderes Ausflugsziel in der näheren Umgebung ist die Müngstener Brücke mit dem darunterliegenden Brückenpark – ein beliebter Treffpunkt für Spaziergänge, Freizeitaktivitäten und Naturerholung im Bergischen Land.
Insgesamt verbindet die Lage eine ruhige Wohnatmosphäre mit guter infrastruktureller Anbindung – eine attraktive Kombination für Familien, Paare und Berufspendler.
Makrolage:
Die Immobilie befindet sich in der Großstadt Wuppertal, die mit rund 355.000 Einwohnern zu den bedeutenden Oberzentren in Nordrhein-Westfalen zählt. Die Stadt liegt im landschaftlich reizvollen Bergisches Land und bildet gemeinsam mit den Städten Solingen und Remscheid das sogenannte Bergische Städtedreieck – eine wirtschaftlich und infrastrukturell eng vernetzte Region.
Durch die Nähe zur Stadt Solingen profitieren Bewohner zusätzlich von einer erweiterten Infrastruktur, zahlreichen Arbeitsplätzen sowie einem vielfältigen Angebot an Einkaufsmöglichkeiten, Gastronomie und Freizeitangeboten. Die Solinger Innenstadt ist in kurzer Fahrzeit erreichbar und stellt damit eine attraktive Ergänzung zum Wuppertaler Angebot dar.
Die Verkehrsanbindung ist insgesamt sehr gut: Über die nahegelegene L74, erreicht man schnell die Bundesautobahnen A46, A1 und die A535, somit sind wichtige Wirtschaftszentren der Region schnell erreichbar. Städte wie Düsseldorf, Köln sowie das Ruhrgebiet liegen in gut erreichbarer Pendeldistanz.
Auch der öffentliche Nahverkehr ist gut ausgebaut. Ein besonderes Wahrzeichen der Stadt ist die weltweit bekannte Wuppertaler Schwebebahn, die seit über 120 Jahren das Stadtbild prägt.
Neben einer guten Infrastruktur bietet Wuppertal ein breites Angebot an Bildung, Wirtschaft und Kultur. Mehrere Hochschulen, renommierte Kliniken sowie zahlreiche mittelständische Unternehmen prägen den Wirtschaftsstandort.
Der südliche Stadtteil Cronenberg gilt dabei als besonders ruhige, grüne und familienfreundliche Wohnlage innerhalb Wuppertals und verbindet naturnahes Wohnen mit der guten Erreichbarkeit der umliegenden Städte.
Insgesamt bietet die Region ein attraktives Zusammenspiel aus wirtschaftlicher Stärke, urbaner Infrastruktur und hoher Lebensqualität im Grünen.
Positiv hervorzuheben sind bereits erfolgte Modernisierungen:
- Neue Gastherme (Heizung & Warmwasser) (Baujahr 2022)
- Neue Haustür (Baujahr 2025)
- Neue Terrassentür (Baujahr 2025)
- Fenster für das EG bereits vorhanden, allerdings noch nicht verbaut
- Neues Fenster in der Küche (Baujahr 2023)
- Neu angelegte Terrassen- und Gartenflächen (Baujahr 2021)
- Ein Außenstellplatz im Sondereigentum
Die Immobilie befindet sich insgesamt in einem gepflegten, jedoch teilweise modernisierungsbedürftigen Zustand. Böden, Bäder und Küche entsprechen überwiegend nicht mehr dem heutigen Zeitgeschmack. Das Obergeschoss ist teilweise holzverkleidet. Gerade dieser Zustand eröffnet jedoch Käufern die Möglichkeit, die Immobilie nach eigenen Vorstellungen zu gestalten und aufzuwerten.






































